豊かな暮らしが叶う
おしゃれな
リノベーションマンション

 SALE <売中古マンション>/名古屋市瑞穂区
リノベーション済み

価格:22,500,000円
面積:64.85㎡
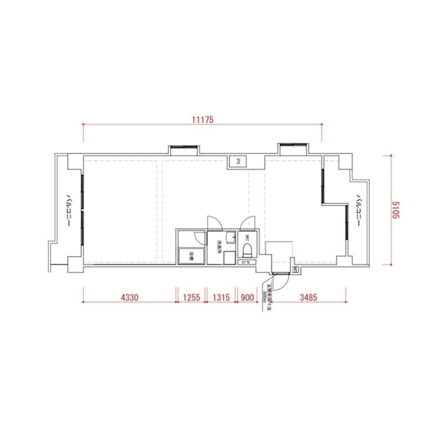
間取:1LDK
【新瑞橋駅徒歩約5分、妙音通駅徒歩約5分】


 

3方窓で明るいお部屋です

 


 

ワンルームの広々リビング

 


 

スタイリッシュなキッチン

 


 

ガラスの扉が印象的でポイント

 


 

広々リビング

 


 

ベットスペースにもできる

 


 

クローゼットはミッキー柄の壁紙が可愛い

 


 

インテリアを楽しめる要素がちりばめられた空間

 


 

洗面室とお風呂

 


 

お風呂

 


 

ホテルのような洗面室の空間

 


 

黒の壁紙でスタイリッシュな印象のトイレ

 


 

トイレの内装もおしゃれな空間

 


 

玄関スペース隣の空間

 


 

玄関は照明が印象的

 


 

最上階 エレベーターすぐです

 


 

見晴らしも日当たりも良いバルコニー

 


 

高い建物が周りにないので最上階の展望も楽しめます!

 

<おすすめポイント>
◎最上階 角部屋
◎2駅利用 徒歩約5分
◎全室USBコンセント
◎高断熱などの高機能も考えられた設備
◎サロンのようなおしゃれな空間
◎リノベーション履歴2019年1月


ライオンズマンションの優美さを残しながらゆとりある暮らしが叶うお部屋にリノベーションしたマンションです。
スタイリッシュなデザインに、センス光る装飾、住む人のセンスによってより輝きをますような余白を残した贅沢な空間になっています!

周辺の高級住宅街に見合った住空間に、2つの駅から徒歩約5分の立地。
近くに大型スーパーもありお買い物も便利、生活環境も良いです。
二重サッシに銃断熱効果で高機能なお部屋です。
日当たりも風通しも良い三方面窓があるもの魅力的です。

一人、またはご夫婦での居住用でもよし、隠家的な高級サロンにもおすすめです。
高級住宅街も近く集客を考えても、事業用でも良い立地と思われます。

LAYOUT

名古屋市瑞穂区妙音通
中古売りマンション  

所在地:

愛知県名古屋市瑞穂区妙音通4丁目52

交通:

名古屋市営地下鉄桜通線「新瑞橋駅」徒歩約5分
名古屋市営地下鉄名城線「妙音通駅」徒歩約5分

マンション名

ライオンズマンション新瑞橋第二

販売価格

22,500,000円

専有面積

64.85㎡(壁芯)

総戸数

18戸

土地権利

所有権

用途地域

近隣商業地域

構造規模

RC7階建7階部分

築年月

1984年8月

管理形態

全部委託

管理方式

巡回管理

施工会社

関組

現状

空き家

駐車場

なし

バイク置場・駐輪場

あり(無料)

設備

都市ガス・給湯・エレベーター

設備・仕様

ユニットバス・タンクトイレ・洗面化粧台・ミラーキャビネット
・温水洗浄便座・IHクリーニングヒーター(3口)・システムキッチン
・食器洗浄乾燥機・収納スペース・クローゼット・照明器具
・人感センサー付照明・室内洗濯機置場・モニター付インターホン
・2面バルコニー・全室USBコンセント付き
・プロジェクター用HDMコンセント・LANケーブル等収納棚

リノベーション内容

2019年1月
水回り:キッチン・浴室・洗面所・給湯器
内装:内装全面(床・壁・天井・建具)天井・壁・床の断熱工法、全面二重サッシ

管理費

管理費:13,500円
積立金:17,510円

引渡し

相談

主要採光面

南向き

情報更新日

2022年2月8日

取引形態

一般媒介(仲介手数料3%+6万円)

物件NO

SM2001

・徒歩距離は1分80mで算出しています
・事務所。サロンの方はご相談ください。

↓お問い合わせ物件NO

SM2001

おすすめ
 
 
[%new:New%]

[%title%]

 

古民家暮らしのサイトについて

▫️『古民家好きの人』が集まるコミュニティ
▫️古民家活用法
▫️古民家プロデュース
▫️古民家の売却・賃貸
 
古民家暮らしのサイトへ